Leave a Message

By providing your contact information to Jason Kramer, your personal information will be processed in accordance with Jason Kramer's Privacy Policy. By checking the box(es) below, you consent to receive communications regarding your real estate inquiries and related marketing and promotional updates in the manner selected by you. For SMS text messages, message frequency varies. Message and data rates may apply. You may opt out of receiving further communications from Jason Kramer at any time. To opt out of receiving SMS text messages, reply STOP to unsubscribe.

Thank you for your message. We will be in touch with you shortly.

Explore Our Properties

Property Description

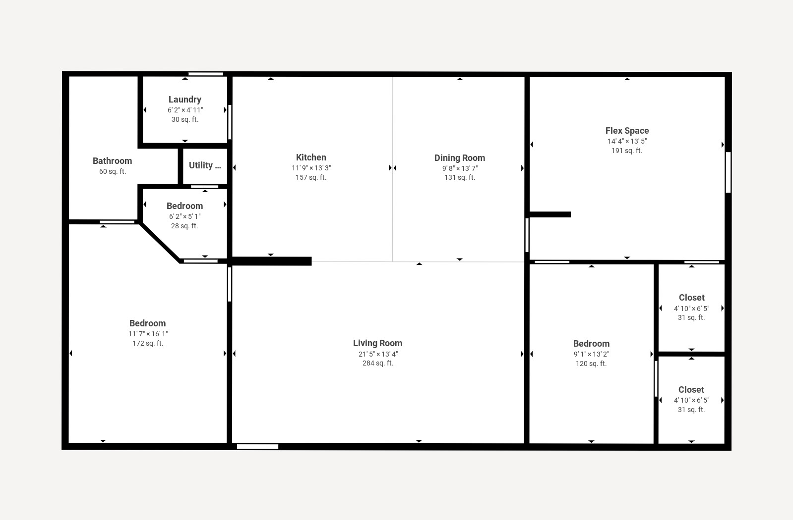
INVESTORS SPECIAL! Double income opportunity, with 2 homes for the price of 1. This acre lot has the original single wide mobile home, plus a double wide mobile home.

1st home on the property is a single wide mobile home. Enjoy open concept living, split 3 bedrooms, 2 full bathrooms, a wood-burning fireplace in the living room, and plenty of cabinets and space in the kitchen. Master bath has large soaking tub and a separate shower. Refrigerator, stove, microwave, dishwasher, washer and dryer stay with the home.

2nd home on the property is a double wide mobile home. Large open concept living area and modern kitchen, with split bedrooms. Flex room has a walk-in closet, which makes it usable as a third bedroom. Live in ready! Refrigerator, stove, microwave, dishwasher, washer and dryer stay with the home.

Close proximity to highway 199 makes it a quick commute to work and stores. NO HOA.

Seller is offering $3k in concessions for upgrades or closing costs.

Overview

Property Status
For Sale
Lot Size
1 Acres
MLS ID
21165343
Property Type
Manufactured-Mobile
Year Built
2001

Features & Amenities

Architecture Styles
Mobile Home
Stories
1
Water Source
Public
Utilites
Septic Available, Water Available
Pool
None
Lot Features
Acreage
Parking
Additional Parking, Driveway, Gravel, Private
Laundry Room
Laundry in Utility Room
Fireplace
Electric
Appliances
Dryer, Dishwasher, Electric Oven, Electric Range, Disposal, Microwave, Refrigerator, Washer
Other Interior Features
Double Vanity, Eat-in Kitchen, Open Floorplan, Paneling/Wainscoting, Walk-In Closet(s)
Sewer
Septic Tank
Elementary School
Springtown
Middle School
Springtown
High School
Springtown
School District
Springtown ISD
Sales Price
$249,999
Real Estate Tax
$2,482/yr

Downloads

206 Creekview Meadows Court

Schedule a Tour

We would love to show you our beautiful property. Please select your preferred date and time below. An agent will be in touch shortly to confirm your appointment.

Thank you

for your interest in 206 Creekview Meadows Court, Springtown, TX 76082

206 Creekview Meadows Court
Navigate
206 Creekview Meadows Court
explore in 3d

Mortgage Calculator

Estimate your monthly mortgage payment, including the principal and interest, property taxes, and HOA. Adjust the values to generate a more accurate rate.
$0,000 Your Payment 20 15 65
$0,000 Your Payment

I'm Interested In

206 Creekview Meadows Court

or
  • CallJason Kramer

    License #0702733

    (817) 899-5099
  • Follow Us On Instagram